Pueblo Andino inverti

El equipo de Pueblo Andino está integrado por profesionales en el área de la hotelería, actividades de alta montaña y construcción bioclimática, contando con el recurso humano para brindarle a los turistas atención personalizada.

¿Porqué elegirnos?

Al ser propietario de una cabaña en Pueblo Andino, nosotros nos encargaremos de:

01.

Atender

Sugerencias y dudas de clientes y medir la satisfacción del mismo.

02.

Informar

¿Qué está sucediendo? ¿Qué va a suceder, cuándo y por qué?

03.

Fomentar

La buena convivencia, tranquilidad y seguridad.

04.

Administrar

Los recursos económicos para optimizar la rentabilidad del negocio.

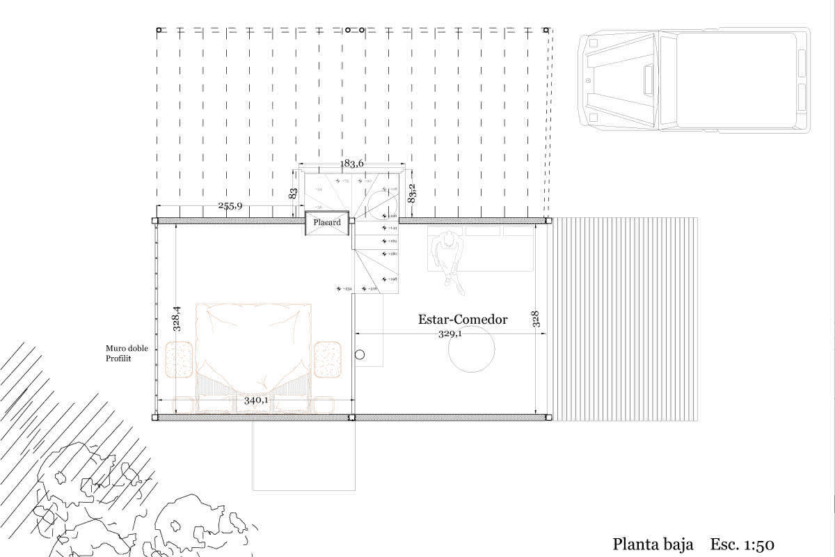
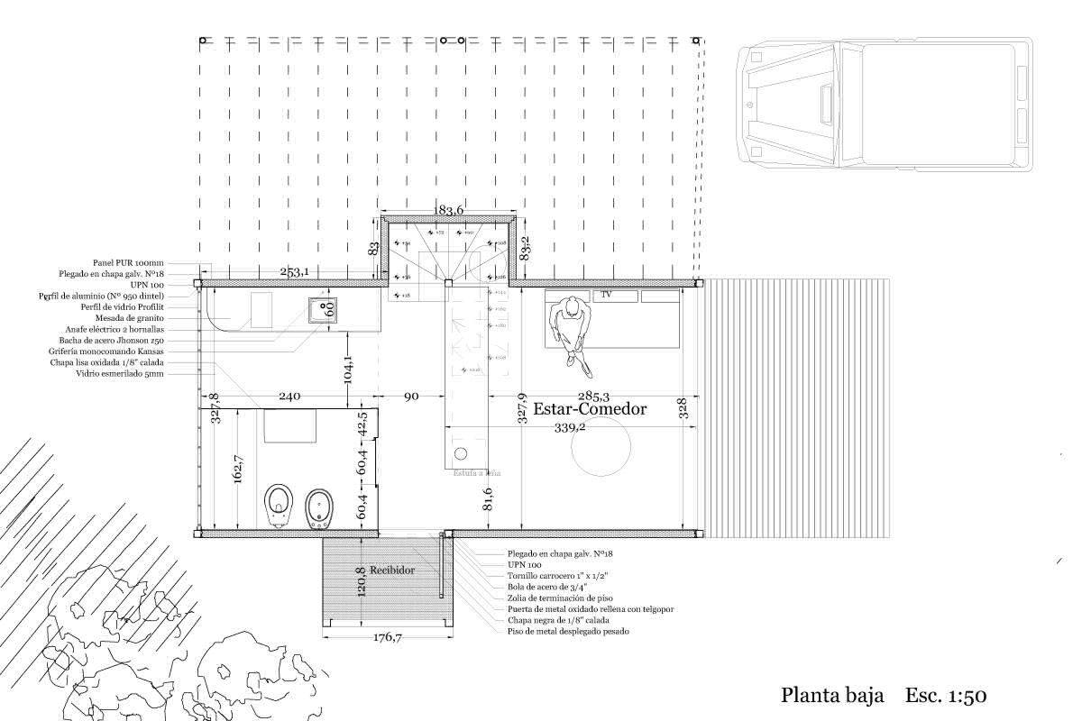
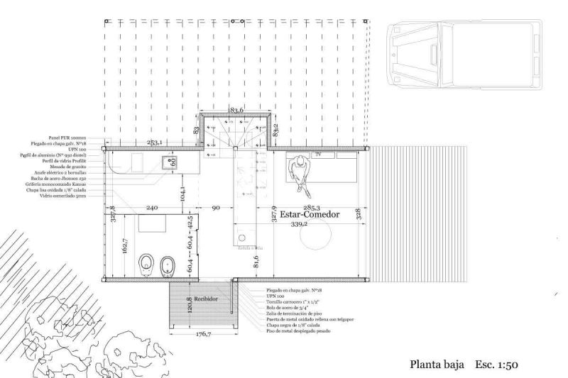
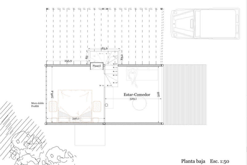
Arquitectura Bioclimática

Las cabañas están diseñadas con arquitectura bioclimática; teniendo en cuenta las condiciones ambientales del entorno de Pueblo Andino para lograr un gran nivel de bienestar en su interior con altos estándares de eficiencia energética.
 
El diseño de la cabaña aprovecha al máximo las fuentes naturales como el calor, la luz solar, las corrientes de aire y minimiza sus pérdidas por medio de elementos tales como la posición sobre el terreno, la orientación y el aislamiento de sus muros, techos, y aberturas.
Los recursos que emplea esta arquitectura para lograr un significativo ahorro energético son:

Arquitectura solar pasiva

Aquella que aprovecha al máximo la energía solar pasiva, es decir aquella que proveniente del Sol llega de manera directa al interior de la casa por medio de ventanales orientados al Norte

Aislamiento de techos y muros

Utilizando aislación de poliuretano en techos y muros y Doble Vidriado Hermético en sus ventanales, se logra que las pérdidas de calor sean mínimas. Así por ejemplo el calor ganado por medio de la energía solar pasiva (o generada por un medio artificial) queda retenido en el interior de la casa y no se pierde. 

Disposición adecuada de las puertas y ventanas

Utilizando ventanas en su cara Sur y Norte logra un flujo natural de aire por convección que traspase el calor de estancias que están recibiendo energía solar de manera directa a otras que no. También en áreas o en momentos de excesivo calor se pueden generar corrientes de aire que refresque el ambiente del interior de la casa.

Disposición adecuada sobre el terreno

La cabaña se cierra hacia el Oeste de donde vienen los vientos predominantes y genera el hall frío e ingreso de la cabaña a resguardo del mismo en la cara este de la construcción. El Estar comedor se abre hacia el punto cardinal óptimo, con un amplio deck exterior, aprovechando el sol y su vista principal “el Cerro Horqueta”, siendo el mismo el más imponente por su altura y proximidad. 

Preguntas frecuentes

Un condominio es un conjunto de propiedades o inmuebles, que residen dentro de un mismo predio. Cada comprador será propietario del inmueble y existirá un gasto en común, como el mantenimiento de las áreas verdes, cañerías, ductos y otros, que deberán ser cancelados por todos los propietarios. Son los famosos gastos comunes.
Hoy en día, una de las alternativas más buscadas, son los condominios. Principalmente por su funcionalidad,. Ya que al ser cabañas, que se encuentran dentro de un mismo predio, con administración y servicios centralizados, simplifica el control, mantenimiento, y manejo de los recursos. 

Pueblo Andino ofrece la administración y alquiler de las mismas. Así como también su mantenimiento (interior, fachada y jardín).
Nos encargaremos de la planificación, organización, dirección y control de los recursos de su cabaña y de los servicios adicionales, además de administrar todos los recursos del condominio y garantizar los estándares de calidad, en la atención a los residentes y a los propietarios de las cabañas.  

Pueblo Andino se encargará de la atención personalizada de los turistas durante su estadía y estará a su disposición para ofrecerles los servicios que requieran. Pueblo Andino ofrece:
● Atención personalizada y seguridad las 24hs
● Wi-fi, Dtv gratuito  
● Calefacción a leña con salamandra. No incluye leña.
● Calefacción por losa radiante
● Vajilla completa
● Deck y living exterior con fogón para cocinar/asar
● Estacionamiento gratuito
● Servicio de limpieza (incluye 1 servicio de limpieza para estadía de 7 noches o más)
● Artículos de higiene personal (alcohol en gel, detergente, papel higiénico) sin reposición, a excepción de estadías de 7 noches o más.
● Opcional: servicio de limpieza, recambio de sábanas y toallas *Con costo adicional y sujeto a disponibilidad* 

Pueblo Andino le ofrece la construcción de su cabaña.
Actúa encargándose de todos los procesos necesarios desde el inicio hasta la finalización de las obras. La cabaña se entrega lista para ser alquilada. Para más información sobre los detalles constructivos, plazos y demás, deja tu mensaje en nuestro contacto más abajo.

Mobirise

CONTACTANOS

Envianos tu consulta y responderemos a la brevedad.

Dirección

R3V5+82Q, M5611
Los Molles, Mendoza

Contacto

Email: info@puebloandinolosmolles.com
Whatsapp: +54 9 260-4359103

Created with Mobirise ‌

Web Page Maker